IAS Guesthouse Information
Address and Apartment Overview
Postal Address:
TUM-IAS Gästehaus/Guesthouse
Siegesstraße 8
80802 München
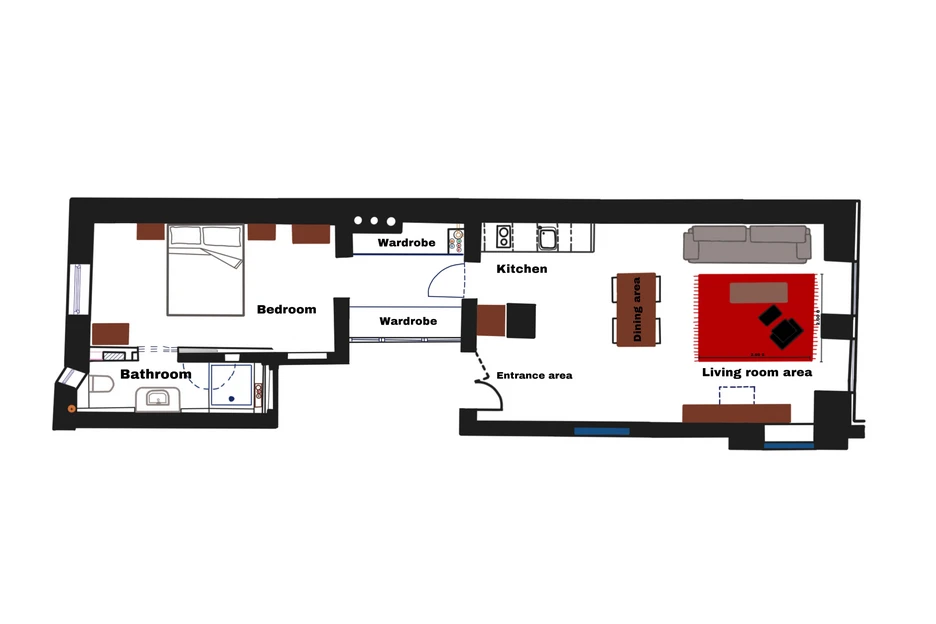
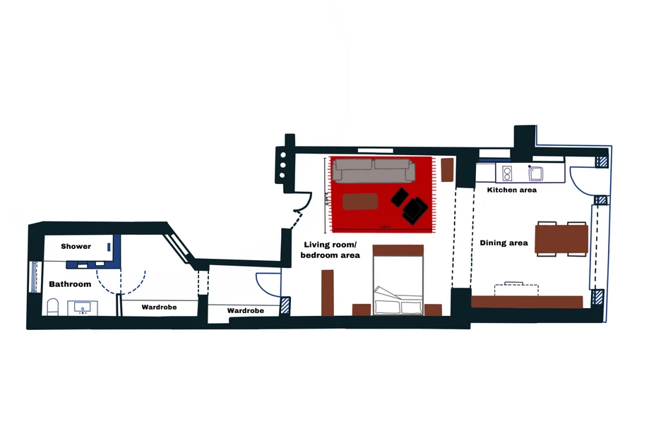
Apartment Overview:
washing machine, dryer, access to garden, bike storage
TUM-IAS Gästehaus/Guesthouse
Siegesstraße 8
80802 München
washing machine, dryer, access to garden, bike storage